この物件の情報は「掲載日」時点の内容になります。
お探しの物件の最新の状況は以下ボタンよりお問い合わせお願いします。
お問い合わせ
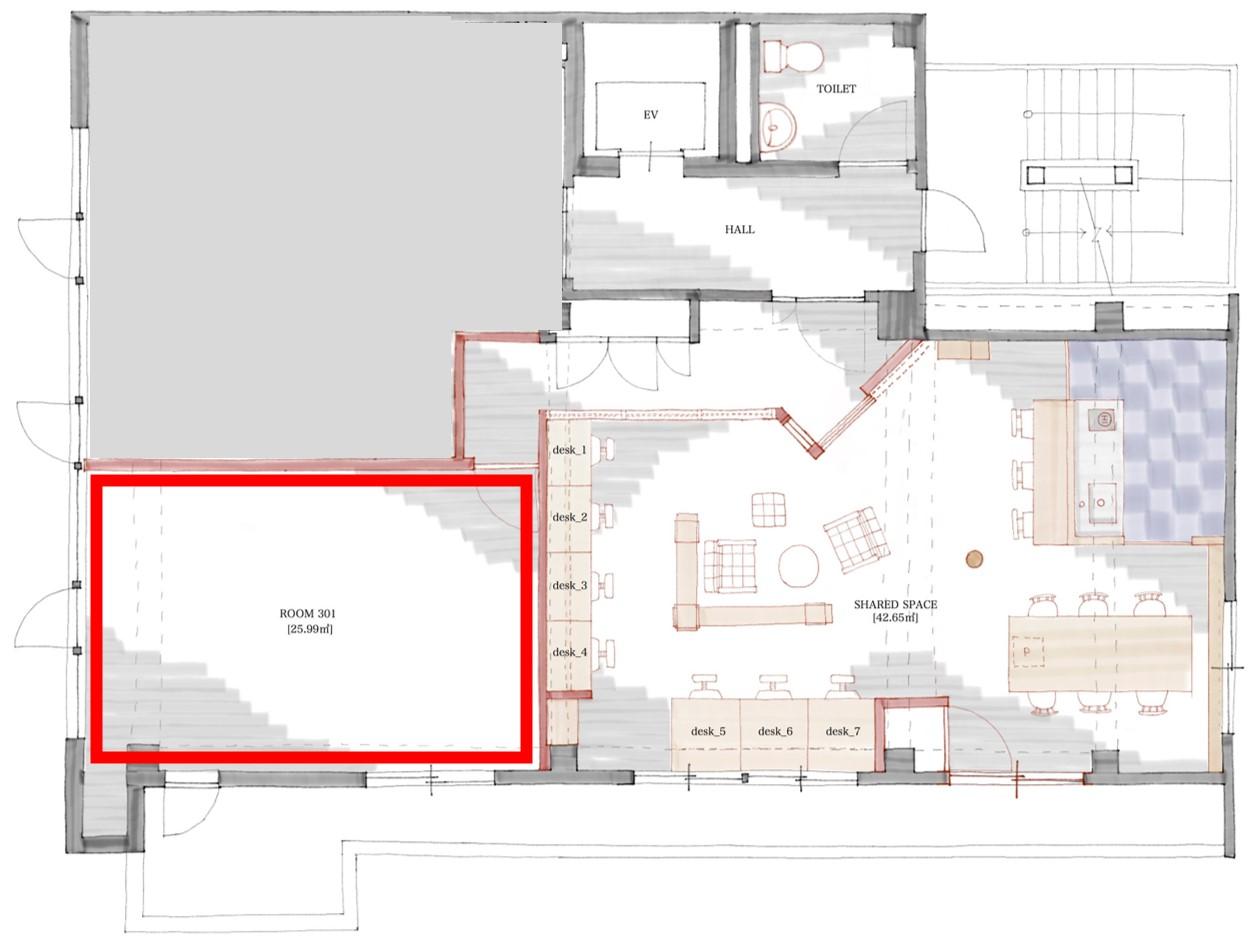
部屋ID:R003079
賃料: 90,000円
共益費・管理費:15,000円(税別)
最寄駅1:JR東西線「大阪城北詰」駅まで 徒歩3分
最寄駅2:大阪メトロ谷町線「天満橋」駅まで 徒歩8分
最寄駅3:京阪本線「京橋」駅まで 徒歩12分
現状:空室
所在地: 大阪府大阪市都島区網島町丁目4-12
成約状況:空室
物件種別:ビル
物件階層:6階建
完成年月:平成 3年3月(築35年)
取引形態:一般媒介
EV:あり
掲載日時:2021-12-28
所在階数:3階
方角:
敷金:90,000円
礼金:180,000円(税別)
保証金:ー円
解約引:ー円
その他費用:駐輪場 月額1,000円
火災保険:ー円(非課税)
契約種別:普通賃貸借
契約期間: