この物件の情報は「掲載日」時点の内容になります。
お探しの物件の最新の状況は以下ボタンよりお問い合わせお願いします。
お問い合わせ
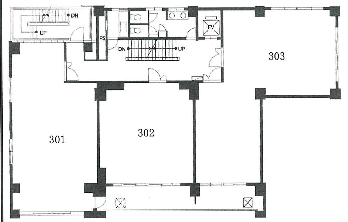
部屋ID:R005569
賃料: 175,500円
共益費・管理費:46,800円(税別)
最寄駅1:大阪メトロ御堂筋線「淀屋橋」駅まで 徒歩5分
最寄駅2:大阪メトロ堺筋線「北浜」駅まで 徒歩5分
最寄駅3:京阪本線「淀屋橋」駅まで 徒歩5分
現状:空室
所在地: 大阪府大阪市中央区平野町2丁目5-14
成約状況:空室
物件種別:ビル
物件階層:8階建地下1階付き
完成年月:昭和48年6月(築53年)
取引形態:一般媒介
EV:あり
掲載日時:2022-10-04
所在階数:3階
方角:
敷金:526,500円
礼金:351,000円(税別)
保証金:ー円
解約引:ー円
その他費用:ー
火災保険:ー円(非課税)
契約種別:普通賃貸借
契約期間:2年