この物件の情報は「掲載日」時点の内容になります。
お探しの物件の最新の状況は以下ボタンよりお問い合わせお願いします。
お問い合わせ
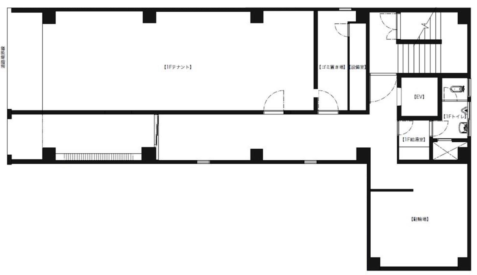
部屋ID:R005817
賃料: 500,000円
共益費・管理費:0円(税別)
最寄駅1:大阪御堂筋線「本町」駅まで 徒歩7分
現状:空室
所在地: 大阪府大阪市中央区北久宝寺町2丁目6-1
成約状況:空室
物件種別:ビル
物件階層:7階建
完成年月:昭和48年7月(築53年)
取引形態:一般媒介
EV:あり
掲載日時:2022-11-05
所在階数:1階
方角:
敷金:1,500,000円
礼金:1,000,000円(税別)
保証金:ー円
解約引:ー円
その他費用:ー
火災保険:ー円(非課税)
家賃保証会社名:日本レジデンス
契約種別:普通賃貸借
契約期間:2年