この物件の情報は「掲載日」時点の内容になります。
お探しの物件の最新の状況は以下ボタンよりお問い合わせお願いします。
お問い合わせ
部屋ID:R005941
賃料: 280,000円
共益費・管理費:20,000円(税別)
最寄駅1:JR東西線「大阪城北詰」駅まで 徒歩1分
最寄駅2:京阪本線「京橋」駅まで 徒歩9分
現状:空室
所在地: 大阪府大阪市都島区網島町丁目8-28
成約状況:空室
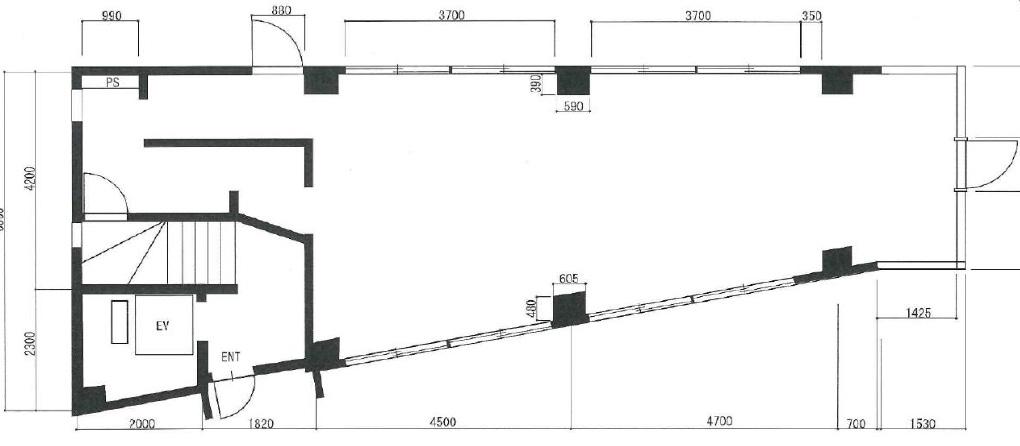
物件種別:ビル
物件階層:
完成年月:昭和48年5月(築53年)
取引形態:一般媒介
EV:あり
掲載日時:2022-12-06
所在階数:1階
方角:
敷金:900,000円
礼金:900,000円(税別)
保証金:ー円
解約引:ー円
その他費用:ー
火災保険:ー円(非課税)
契約種別:普通借家契約
契約期間:2年