この物件の情報は「掲載日」時点の内容になります。
お探しの物件の最新の状況は以下ボタンよりお問い合わせお願いします。
お問い合わせ
部屋ID:R006291
賃料: 3,517,200円
共益費・管理費:390,800円(税別)
最寄駅1:大阪メトロ御堂筋線「梅田」駅まで 徒歩3分
最寄駅2:阪急神戸本線「大阪梅田」駅まで 徒歩3分
最寄駅3:大阪環状線「大阪」駅まで 徒歩5分
現状:空室
所在地: 大阪府大阪市北区芝田2丁目6-30
成約状況:空室
物件種別:ビル
物件階層:8階建
完成年月:昭和57年2月(築44年)
取引形態:一般媒介
EV:あり
掲載日時:2023-02-24
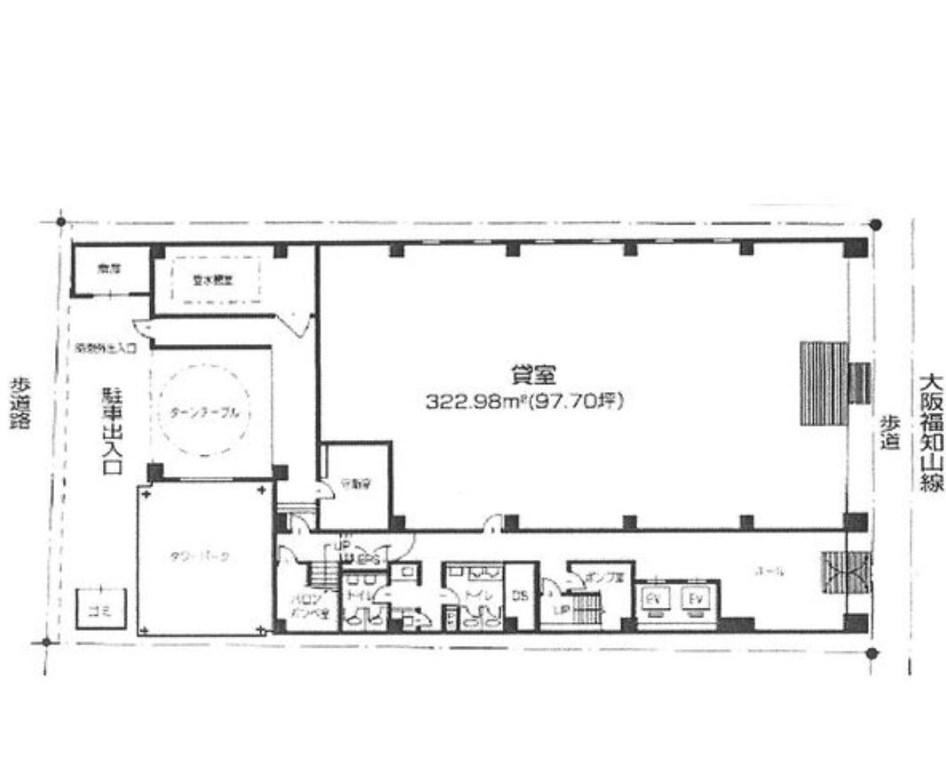
所在階数:1階
方角:
敷金:ー円
礼金:ー円(税別)
保証金:42,206,400円
解約引:ー円
その他費用:ー
火災保険:ー円(非課税)
契約種別:普通賃貸借
契約期間: