この物件の情報は「掲載日」時点の内容になります。
お探しの物件の最新の状況は以下ボタンよりお問い合わせお願いします。
お問い合わせ
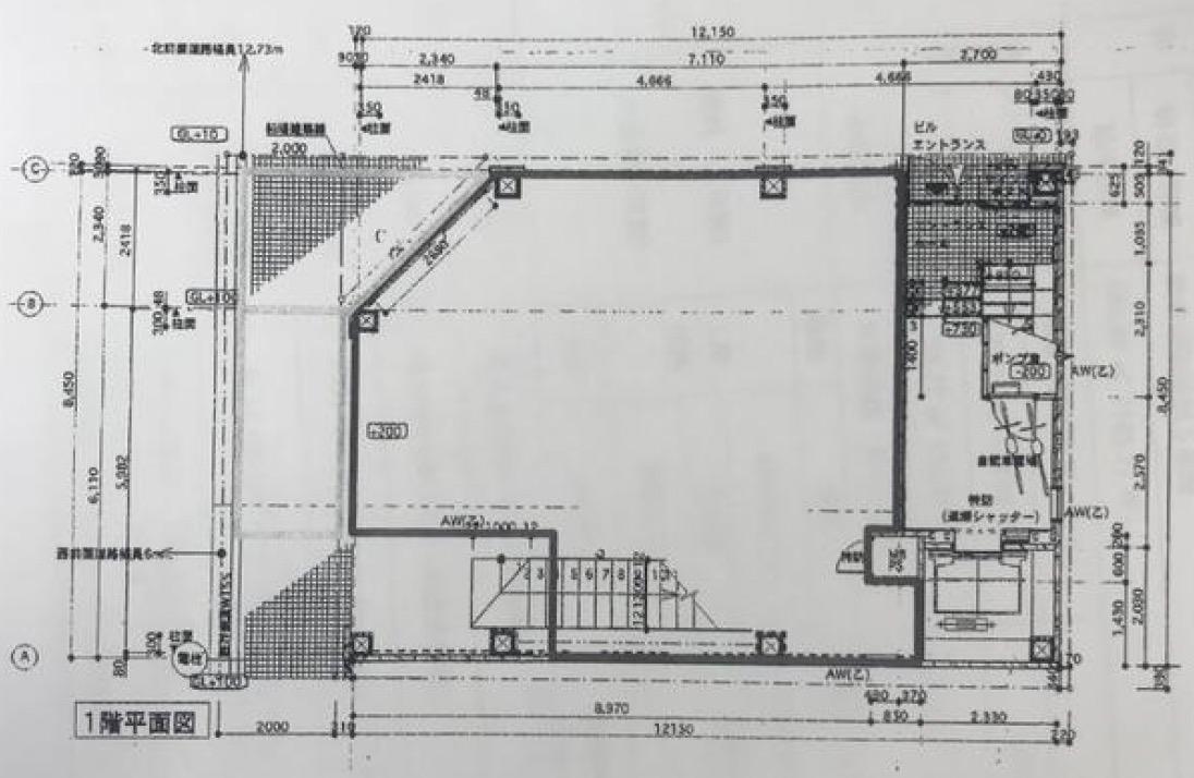
部屋ID:R006587
賃料: 770,000円
共益費・管理費:0円(税別)
最寄駅1:大阪メトロ御堂筋線「本町」駅まで 徒歩3分
最寄駅2:大阪メトロ御堂筋線「本町」駅まで 徒歩4分
現状:空室
所在地: 大阪府大阪市中央区平野町3丁目3-5
成約状況:空室
物件種別:ビル
物件階層:5階建
完成年月:平成15年7月(築23年)
取引形態:一般媒介
EV:なし
掲載日時:2023-04-27
所在階数:1階
方角:
敷金:ー円
礼金:ー円(税別)
保証金:9,000,000円
解約引:2,000,000円円
その他費用:機械警備費 月額10,000円
火災保険:ー円(非課税)
契約種別:普通借家
契約期間: