この物件の情報は「掲載日」時点の内容になります。
お探しの物件の最新の状況は以下ボタンよりお問い合わせお願いします。
お問い合わせ
部屋ID:R006588
賃料: 155,000円
共益費・管理費:18,000円(税別)
最寄駅1:大阪メトロ堺筋線「長堀橋」駅まで 徒歩4分
最寄駅2:大阪メトロ長堀鶴見緑地線「長堀橋」駅まで 徒歩4分
現状:賃貸中
所在地: 大阪府大阪市中央区南船場1丁目15-3
成約状況:賃貸中
物件種別:ビル
物件階層:7階建
完成年月:昭和60年3月(築41年)
取引形態:一般媒介
EV:あり
掲載日時:2023-04-27
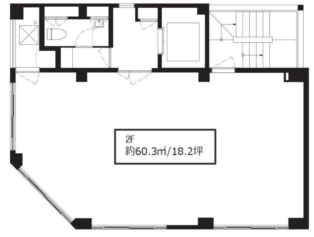
所在階数:2階
方角:
敷金:155,000円
礼金:310,000円(税別)
保証金:ー円
解約引:ー円
その他費用:ー
火災保険:ー円(非課税)
契約種別:普通借家
契約期間:2年