この物件の情報は「掲載日」時点の内容になります。
お探しの物件の最新の状況は以下ボタンよりお問い合わせお願いします。
お問い合わせ
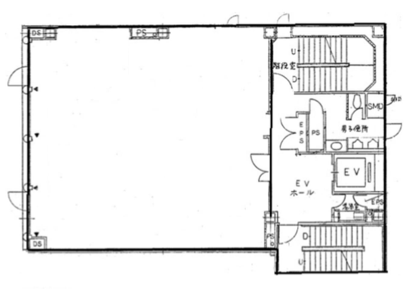
部屋ID:R006728
賃料: 1,200,000円
共益費・管理費:20,000円(税別)
最寄駅1:大阪メトロ谷町線「東梅田」駅まで 徒歩3分
最寄駅2:JR神戸線(大阪~神戸)「大阪」駅まで 徒歩7分
最寄駅3:大阪メトロ御堂筋線「梅田」駅まで 徒歩7分
現状:空室
所在地: 大阪府大阪市北区曽根崎2丁目8-5
成約状況:空室
物件種別:ビル
物件階層:8階建地下1階付き
完成年月:平成5年4月(築33年)
取引形態:一般媒介
EV:あり
掲載日時:2023-05-31
所在階数:2階
方角:
敷金:ー円
礼金:1,200,000円(税別)
保証金:9,600,000円
解約引:2,400,000円
その他費用:保証金 オフィス使用の場合は6ヶ月
火災保険:ー円(非課税)
契約種別:普通借家契約
契約期間:2年