この物件の情報は「掲載日」時点の内容になります。
お探しの物件の最新の状況は以下ボタンよりお問い合わせお願いします。
お問い合わせ
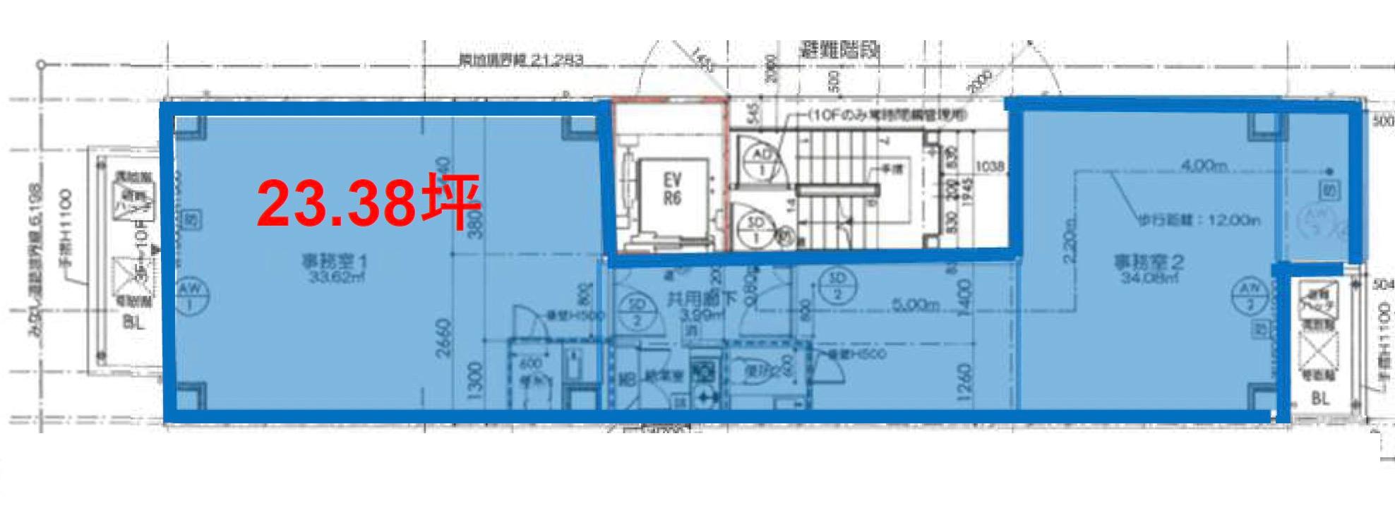
部屋ID:R006929
賃料: 430,000円
共益費・管理費:0円(税別)
最寄駅1:大阪メトロ堺筋線「堺筋本町」駅まで 徒歩1分
最寄駅2:大阪メトロ中央線「堺筋本町」駅まで 徒歩1分
現状:空室
所在地: 大阪府大阪市中央区南本町1丁目5-7
成約状況:空室
物件種別:ビル
物件階層:10階建
完成年月:令和4年12月(築3年)
取引形態:貸主
EV:あり
掲載日時:2023-10-17
所在階数:10階
方角:
敷金:3,440,000円
礼金:ー円(税別)
保証金:ー円
解約引:ー円
その他費用:ー
火災保険:ー円(非課税)
契約種別:定期借家契約
契約期間:3年