この物件の情報は「掲載日」時点の内容になります。
お探しの物件の最新の状況は以下ボタンよりお問い合わせお願いします。
お問い合わせ
部屋ID:R008138
賃料: 150,000円
共益費・管理費:10,000円(税別)
最寄駅1:大阪メトロ御堂筋線「中津」駅まで 徒歩2分
現状:空室
所在地: 大阪府大阪市北区中津1丁目10-13
成約状況:空室
物件種別:ビル
物件階層:4階建
完成年月:昭和58年1月(築43年)
取引形態:ー
EV:-
掲載日時:2024-03-23
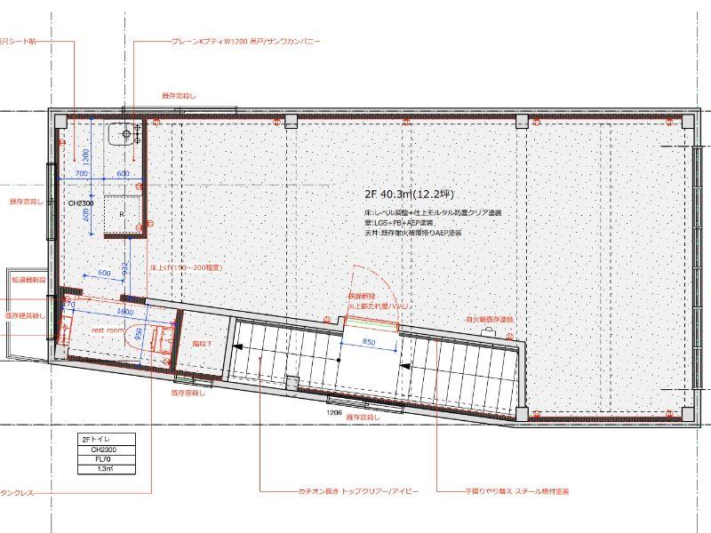
所在階数:2階
方角:
敷金:150,000円
礼金:165,000円(税別)
保証金:ー円
解約引:ー円
その他費用:ー
火災保険:ー円(非課税)
契約種別:普通借家
契約期間:2年