この物件の情報は「掲載日」時点の内容になります。
お探しの物件の最新の状況は以下ボタンよりお問い合わせお願いします。
お問い合わせ
部屋ID:R008971
賃料: 616,000円
共益費・管理費:ー円(税別)
最寄駅1:阪急神戸本線「十三」駅まで 徒歩5分
最寄駅2:阪急神戸本線「大阪梅田」駅まで 徒歩31分
最寄駅3:JR神戸線(大阪~神戸)「塚本」駅まで 徒歩18分
現状:空室
所在地: 大阪府大阪市淀川区十三本町1丁目17-24
成約状況:空室
物件種別:賃貸マンション
物件階層:9階建
完成年月:令和6年4月(築2年)
取引形態:ー
EV:あり
掲載日時:2026-02-06
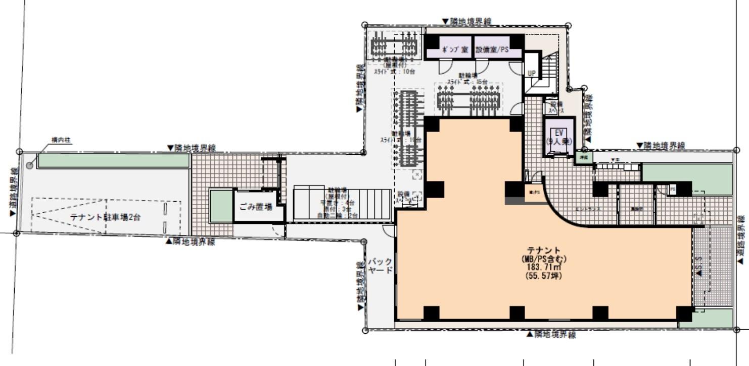
所在階数:1階
方角:
敷金:ー円
礼金:616,000円(税別)
保証金:ー円
解約引:ー円
その他費用:ー
火災保険:ー円(非課税)
契約種別:普通借家
契約期間:2年