この物件の情報は「掲載日」時点の内容になります。
お探しの物件の最新の状況は以下ボタンよりお問い合わせお願いします。
お問い合わせ
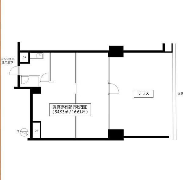
部屋ID:R008974
賃料: 330,000円
共益費・管理費:ー円(税別)
最寄駅1:大阪メトロ四つ橋線「西梅田」駅まで 徒歩5分
最寄駅2:大阪環状線「大阪」駅まで 徒歩8分
最寄駅3:JR東西線「北新地」駅まで 徒歩4分
現状:空室
所在地: 大阪府大阪市北区曽根崎新地2丁目5-5
成約状況:空室
物件種別:ビル
物件階層:9階建
完成年月:平成16年2月(築22年)
取引形態:ー
EV:あり
掲載日時:2026-01-09
所在階数:1階
方角:
敷金:660,000円
礼金:990,000円(税別)
保証金:ー円
解約引:ー円
その他費用:ー
火災保険:ー円(非課税)
契約種別:普通借家
契約期間:2年