この物件の情報は「掲載日」時点の内容になります。
お探しの物件の最新の状況は以下ボタンよりお問い合わせお願いします。
お問い合わせ
部屋ID:R009594
賃料: 388,220円
共益費・管理費:ー円(税別)
最寄駅1:大阪メトロ堺筋線「長堀橋」駅まで 徒歩2分
現状:空室
所在地: 大阪府大阪市中央区東心斎橋2丁目1-3
成約状況:空室
物件種別:ビル
物件階層:8階建地下1階付き
完成年月:昭和39年11月(築62年)
取引形態:仲介
EV:1基
掲載日時:2026-01-09
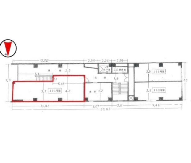
所在階数:1階
方角:東
敷金:ー円
礼金:388,220円(税別)
保証金:3,882,200円
解約引:ー円
その他費用:ー
火災保険:ー円(非課税)
契約種別:定期借家
契約期間:5年