この物件の情報は「掲載日」時点の内容になります。
お探しの物件の最新の状況は以下ボタンよりお問い合わせお願いします。
お問い合わせ
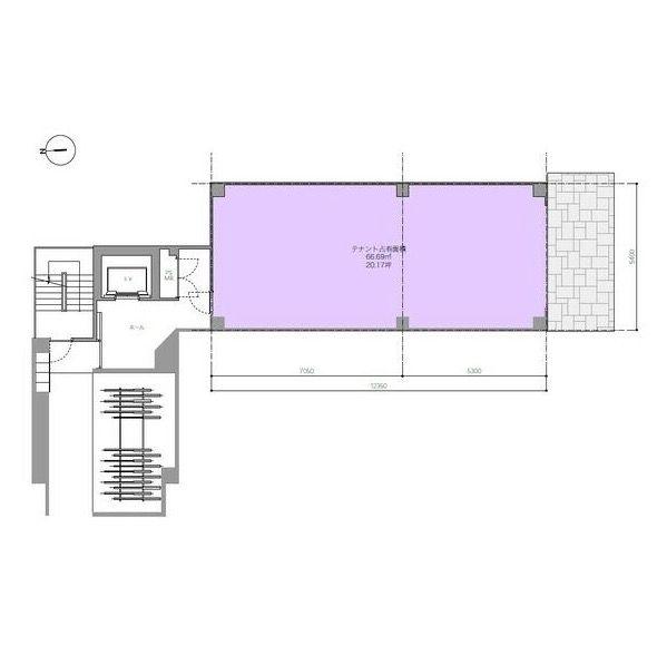
部屋ID:R008667
賃料: 495,000円
共益費・管理費:55,000円(税別)
最寄駅1:大阪環状線「福島」駅まで 徒歩4分
最寄駅2:JR東西線「新福島」駅まで 徒歩6分
最寄駅3:阪神本線「福島」駅まで 徒歩6分
現状:空室
所在地: 大阪府大阪市福島区福島7丁目21
成約状況:空室
物件種別:賃貸マンション
物件階層:8階建
完成年月:令和5年12月(築3年)
取引形態:ー
EV:-
掲載日時:2026-01-09
所在階数:1階
方角:南
敷金:1,500,000円
礼金:1,000,000円(税別)
保証金:ー円
解約引:ー円
その他費用:ー
火災保険:ー円(非課税)
契約種別:普通借家
契約期間:2年