
部屋ID:R009671
賃料: 165,000円
共益費・管理費:ー円(税別)
最寄駅1:近鉄大阪線「大阪上本町」駅まで 徒歩7分
現状:空室
所在地: 大阪府大阪市中央区上本町西3丁目2-2
成約状況:空室
物件種別:賃貸マンション
物件階層:13階建
完成年月:平成19年7月(築19年)
取引形態:仲介
EV:あり
掲載日時:2026-02-06
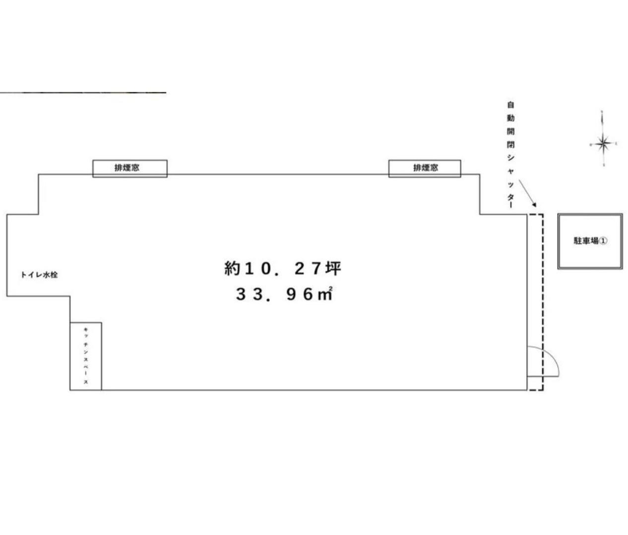
所在階数:1階
方角:
敷金:300,000円
礼金:330,000円(税別)
保証金:ー円
解約引:ー円
その他費用:ー
火災保険:ー円(非課税)
契約種別:
契約期間: