この物件の情報は「掲載日」時点の内容になります。
お探しの物件の最新の状況は以下ボタンよりお問い合わせお願いします。
お問い合わせ
部屋ID:R009690
賃料: 990,000円
共益費・管理費:0円(税別)
最寄駅1:大阪メトロ堺筋線「恵美須町」駅まで 徒歩5分
最寄駅2:南海本線「難波」駅まで 徒歩11分
現状:空室
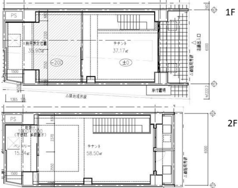
所在地: 大阪府大阪市浪速区日本橋5丁目10-4
成約状況:空室
物件種別:ビル
物件階層:12階建
完成年月:令和6年3月(築2年)
取引形態:仲介
EV:あり
掲載日時:2026-05-01
所在階数:1階
方角:
敷金:5,940,000円
礼金:1,980,000円(税別)
保証金:ー円
解約引:ー円
その他費用:·商店街組合 加入 入会金20,000円 月額14,500円
火災保険:ー円(非課税)
契約種別:
契約期間: