この物件の情報は「掲載日」時点の内容になります。
お探しの物件の最新の状況は以下ボタンよりお問い合わせお願いします。
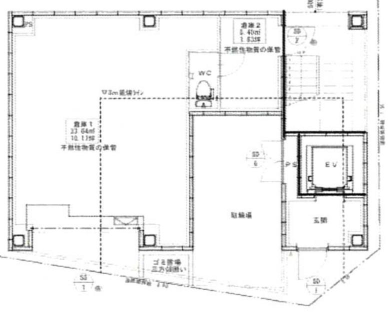
お問い合わせ大阪市淀川区東三国に位置する「SAWAKAビルディング」
今回紹介するのはマンション1階のテナント区画
スケルトン渡しのスケルトン返しが原則となっております。
業種としては、事務所や軽飲食、サービス業、美容関連に特におすすめ
ビジネスや生活に最適な賃貸マンションです。最寄りの大阪メトロ御堂筋線「東三国駅」から徒歩3分という好立地にあり、アクセスも非常に便利です。この物件は地上5階建てで、1階には様々な業種のテナントが入ることが可能なスケルトン仕様の路面店舗です。 家賃は22万円で、教室やジム、美容室、エステ、ネイル、物販、アパレル、軽飲食など、多様な業種に対応しています。特に角地に位置するため、視認性が高く、多くの人々にアプローチできる環境が整っています。また、1フロア1テナントという設計により、プライバシーを確保しつつ、ビジネスを展開することが可能です。 周辺環境も充実しており、駅周辺には飲食店やカフェ、スーパーマーケットなどが点在しています。日常の買い物や食事に困ることはありません。また、淀川区内には公園も多く、リフレッシュしたいときには自然を楽しむことができます。 この物件は築浅であり、現代的な設備が整っています。特に、在宅勤務やリモートワークを行う方にとっても快適な環境が整っているため、ビジネスの拠点としてだけでなく、生活空間としても利用することが可能です。周囲の静けさや、周辺の便利な施設が生活の質を向上させます。 「SAWAKAビルディング」は、ビジネスの立ち上げや新たな店舗展開を考えている方にとって、非常に魅力的な選択肢となるでしょう。
内覧の際は現地待ち合わせやお迎えでの対応も相談可能。
店舗物件以外にも住居や売買物件の取り扱いもしております。
立地条件、周辺環境、そして物件の特性を考慮すると、将来的な成長が期待できるエリアです。興味がある方は、ぜひ一度現地をご覧ください。お待ちしております。

部屋ID:R010099
賃料: 220,000円
共益費・管理費:30,000円(税別)
最寄駅1:大阪メトロ御堂筋線「東三国」駅まで 徒歩3分
現状:空室
所在地: 大阪府大阪市淀川区東三国4丁目10-1
成約状況:空室
物件種別:賃貸マンション
物件階層:5階建
完成年月:令和6年7月(築1年)
取引形態:仲介
EV:あり
掲載日時:2025-11-29
所在階数:1階
方角:
敷金:220,000円
礼金:220,000円(税別)
保証金:ー円
解約引:ー円
その他費用:ー
火災保険:ー円(非課税)
契約種別:普通借家
契約期間:2年