この物件の情報は「掲載日」時点の内容になります。
お探しの物件の最新の状況は以下ボタンよりお問い合わせお願いします。
お問い合わせ
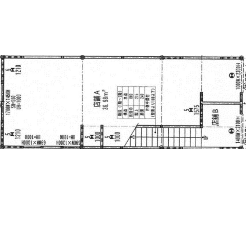
部屋ID:R009513
賃料: 300,000円
共益費・管理費:ー円(税別)
最寄駅1:JR東西線「新福島」駅まで 徒歩3分
現状:空室
所在地: 大阪府大阪市福島区福島2丁目2-2
成約状況:空室
物件種別:ビル
物件階層:
完成年月:令和元年12月(築7年)
取引形態:仲介
EV:-
掲載日時:2026-05-01
所在階数:1階
方角:
敷金:ー円
礼金:1,000,000円(税別)
保証金:ー円
解約引:ー円
その他費用:ー
火災保険:ー円(非課税)
契約種別:
契約期間: